
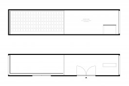
Reminiszenz an die Alpenblume is a spatial experiment that deals with remembering a specific landscape. In an enclosed box, which blocks external influences and prevents the visual connection to the surrounding space, the landscape is reproduced in a highly concentrated way. The landscape chosen for this purpose is one with a highly personal reference, which tells stories of a childhood, a mountain, a wooden hut and yellow arnica blossoms.
For the viewer the spatial installation can open up completely new and unexpected associative spaces, which enable a mental journey to distant places – or evoke one‘s own memories through recognizability. The exhibition is divided into two areas: a foyer and a sensoric chamber. In the sensoric chamber, the landscape of a flowering alpine meadow is made sensually tangible – on a programmatic, visual, olfactory and physical level. The visit to the interior flower meadow is linked to a pseudo-scientific process of botanizing. The visitors themselves become botanists and pick bouquets of flowers from the walls. The elastic floor cloth simulates the heathlands and affects the movement. A strong sensoric impression is created by the pine scent, developed especially for the exhibition, which is reminiscent of the spicy smell of the alpine landscape.
Installation 2018, CoMA Container Collective Munich
Context: Master's thesis, Chair of Landscape Architecture and Public Space (Prof. Regine Keller)
Awarded with: bdla Nachwuchspreis, Preis des Oberbürgermeisters der Stadt Freising















↑
Back to the top

Reminiszenz an die Alpenblume is a spatial experiment that deals with remembering a specific landscape. In an enclosed box, which blocks external influences and prevents the visual connection to the surrounding space, the landscape is reproduced in a highly concentrated way. The landscape chosen for this purpose is one with a highly personal reference, which tells stories of a childhood, a mountain, a wooden hut and yellow arnica blossoms.
For the viewer the spatial installation can open up completely new and unexpected associative spaces, which enable a mental journey to distant places – or evoke one‘s own memories through recognizability. The exhibition is divided into two areas: a foyer and a sensoric chamber. In the sensoric chamber, the landscape of a flowering alpine meadow is made sensually tangible – on a programmatic, visual, olfactory and physical level. The visit to the interior flower meadow is linked to a pseudo-scientific process of botanizing. The visitors themselves become botanists and pick bouquets of flowers from the walls. The elastic floor cloth simulates the heathlands and affects the movement. A strong sensoric impression is created by the pine scent, developed especially for the exhibition, which is reminiscent of the spicy smell of the alpine landscape.
Installation 2018, CoMA Container Collective Munich
Context: Master's thesis, Chair of Landscape Architecture and Public Space (Prof. Regine Keller)
Awarded with: bdla Nachwuchspreis, Preis des Oberbürgermeisters der Stadt Freising















↑
Back to the top